Maanläheinen kylpyhuone ja sauna
1980-luvun rivitalokodin kylpyhuone ja sauna
30 vuotta vanha kylpyhuone ja sauna olivat tulleet tiensä päähän, joten ne päätettiin remontoida vastaamaan tätä päivää. Remontin suunnittelu käynnistyi myymälästämme, ja itse remontti sujui jouhevasti ilman yllätyksiä.
| Projektin tyyppi: |
|
|---|---|
| Sijainti: | Savonlinna |
| Rakennustyyppi: | Rivitalo |
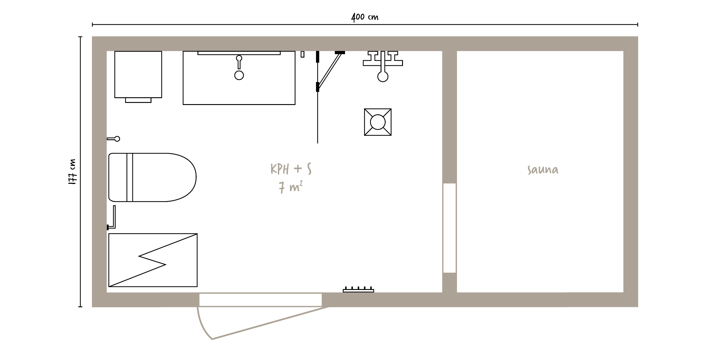
| Pinta-ala: | 7 m² |
| Suunnittelija: | Laattapiste Oy |
|---|---|
| Pääurakoitsija: | Laattapiste Oy |
”Tuntuu, että myyjä osasi heti lukea ajatuksiani.”
Luonnollista kauneutta
Toiveena luonnollisen raikas kylpyhuone
”Talomme on rakennettu vuonna 1986, ja kylpyhuone sekä sauna olivat lähes alkuperäisessä kunnossa: Kylpyhuoneessa oli suihkun takana perusvalkoista ja lattiassa ruskeaa laattaa. Lisäksi wc:n puolella oli rusehtava, raidallinen tapetti, joka ei ollut kovin kaunis. Pinnat alkoivat muutenkin olla nuhjuiset ja niitä ei saanut enää kunnolla puhtaaksi. Halusin uudistaa ja raikastaa koko kylpyhuoneen. Sauna oli sinänsä hyvässä kunnossa, mutta samalla vaivalla päätin remontoida myös sen.
Kylpyhuonekalusteiden hivenen kelopuuta muistuttava kuviointi tuo kylpyhuoneeseen ilmettä.
Saunan väritys on raikkaan vaalea, ja tyyliltään tila on konstailemattoman yksinkertainen.
Materiaalien luonnonläheiset sävyt tekevät kylpyhuoneesta harmonisen.
Avaimet käteen -kylpyhuoneremontti houkutteli
Valitsin kumppaniksi Laattapisteen, koska halusin päästä remontissa mahdollisimman vähällä vaivalla. En halunnut huolehtia itse remontin sujumisesta tai etsiä eri osaajia. Laattapisteeltä koko homman sai avaimet käteen -periaatteella, ja sieltä löytyivät myös omaan makuuni sopivat kalusteet ja laatat.
Uuden kylpyhuoneen suunnittelu alkoi tapaamisella myymälässä. Kun olimme keskustelleet toiveistani, ehdotti myyjä Minna minulle laattoja, jotka osuivat saman tien nappiin. Tuntuu, että hän osasi heti lukea ajatuksiani. Toki katsoimme yhdessä vielä muitakin vaihtoehtoja, mutta päädyin lopulta ensimmäisiin laattoihin, jotka olivat mielestäni täydelliset.
"Asiantunteva apu ja 3D-piirustukset helpottivat todella paljon suunnittelua ja päätöksentekoa."
Lattiaan valikoitui luonnonkivimäinen harmaa laatta ja seiniin hiekanvärinen iso laatta. Pidän näistä laatoista, koska ne ovat maanläheiset mutta eivät kuitenkaan ihan peruslaatat. Koska kylpyhuone ei muuten ole kovin räväkkä, halusin elävöittää sitä hieman kalusteilla. Allaskaappiin ja korkeaan kaappiin valittiin kelopuumainen pintakuvio, ja saunaan halusin vaaleat lauteet ja paneelit. Asiantunteva apu ja 3D-piirustukset helpottivat todella paljon suunnittelua ja päätöksentekoa.
Täydellinen lopputulos
Itse remontti sujui tosi vaivattomasti, kun ei tarvinnut itse huolehtia mistään: kaikki sähkötöistä putkiin ja rakennusvalvojaan tulivat samasta paikasta. Remontti pysyi aikataulussa, ja matkan varrella ei tullut yllätyksiä. Oli myös hienoa, että aina kun kävin työmaalla, remonttimiehet jaksoivat kertoa perusteellisesti, mitä olivat tekemässä ja mitä tapahtuisi seuraavaksi.
Lopputulokseen olen erittäin tyytyväinen. Työn jälki on todella hyvää, ja kylpyhuoneesta tuli ihan erinäköinen – siisti ja raikas. Myös vaalea sauna on ihanan freesi.”
Sanna Väisänen, Savonlinna


