Rauhallinen saunaosasto, wc ja kylpyhuone
2000-luvun omakotitalon saunaosasto, wc ja kylpyhuone
Yli 15 vuotta vanhan omakotitalon saunatilat sekä kylpyhuone ja wc kaipasivat tyylillistä päivitystä. Asukkaiden toiveena olivat toimivat ja harmoniset tilat, jotka kestäisivät aikaa. Iso remontti ei asukkaiden mukaan häirinnyt elämää, vaikka talossa asuttiin koko remontin ajan.
| Projektin tyyppi: |
|
|---|---|
| Sijainti: | Oulu |
| Rakennustyyppi: | Omakotitalo |
| Rakennusvuosi: | 2000 |
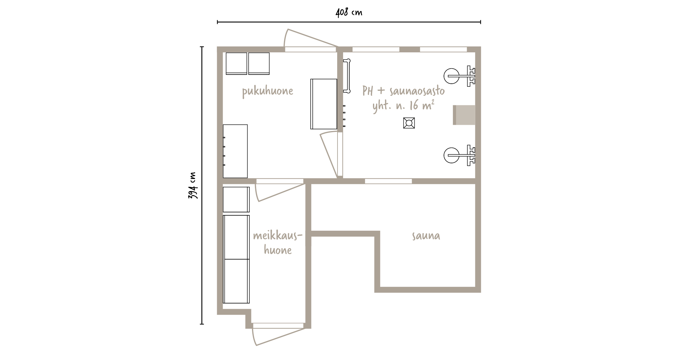
| Pinta-ala: | 27 m² |
| Suunnittelija: | Laattapiste Oy |
|---|---|
| Pääurakoitsija: | Laattapiste Oy |
”Haimme isoa toimijaa, joka pystyisi toteuttamaan koko kylpyhuoneremontin.”
Hinta yhteensä: 111 577,40 € (sis. wc:n, kylpyhuoneen, pesuhuoneen, saunan ja pukuhuoneen remontin)
Laatat: 8 381,10 €
Kalusteet ja tarvikkeet (kaapit, allas, wc-istuin, suihkuseinä, lattiakaivonkansi jne.): 35 381,90 €
Rakennusmateriaalit ja -tarvikkeet (mukaan lukien jätemaksut): 12 477,10 €
Remonttityöt: 41 296 €
Sähkötyöt: 2 566,80 €
Putkityöt: 2 566,80 €
LVIS-tarvikkeet: 5 529,70 €
Rahtikulut: 486 €
Ulkopuolisen arkkitehtitoimiston suunnittelutyö (kylpyhuoneen suurentaminen vaatehuoneeseen vaati rakennusluvan ja -piirustukset): 2 892 €
Kotitalousvähennys työn osuudesta yhden hengen taloudessa: 2 400 €
Kotitalousvähennys työn osuudesta kahden hengen taloudessa: 4 800 €
Kukkaistyylisestä harmoniseksi saunaosastoksi
”Muutimme aikoinaan valmiiseen taloon, joka on nyt vähän yli 15 vuotta vanha. Varsinkin kylpyhuoneet ja saunatilat oli tehty tuon ajan hengen mukaisesti kukkaistyylisiksi. Olimme remontoineet taloa vuosien varrella, ja nyt oli aika päivittää myös kylpytilat ja sauna.
Uusia ideoita ja toimivia ratkaisuja
Remonttikumppanin valinnassa ei ollut sen suurempaa mystiikkaa: haimme isoa toimijaa, joka pystyisi toteuttamaan kylpyhuoneremontin kokonaisuudessaan aina suunnittelusta työnjohtoon ja toteutukseen asti.
Uudistuksella haimme modernia ja rauhallista ilmettä, joka kestäisi aikaa. Myymälässä keskustelimme paljon Katjan, Laattapisteen myyjän, kanssa.
Uudistuksessa haettiin modernia ja rauhallista ilmettä, joka kestäisi aikaa.
Kaikkiin tiloihin valittiin väriksi harmonista vaaleaa ja harmaata.
Yläkerran kylpyhuone sopii tyylillisesti yhteen alakerran saunatilojen kanssa.
Katjalla oli hyvä näkemys erilaisista tyyleistä ja ratkaisuista ja häneltä saimme ehdotuksia, joita emme olisi itse osanneet edes toivoa.
Erityisen tyytyväisiä olemme olleet yläkerran suihkutilan muuntamiseen tilavaksi kylpyhuoneeksi. Vaikka uuden tilan remontoiminen vaati myös seinien siirtoa, on ratkaisu tilan käytön ja kokonaisuuden kannalta erinomainen.
Remontti ei häirinnyt elämää
Jouduimme asumaan kodissamme samaan aikaan remontin kanssa ja siksi päätimme, että tilat remontoitaisiin yksitellen.
”Matkan varrella ei tullut yllätyksiä,
ja aikataulutkin pitivät.”
Asuminen remontin keskellä onnistui hyvin. Remonttimiehet suojasivat tilat, joten remontista ei tullut sotkua tai pölyä muihin huoneisiin. Olikin myönteinen yllätys, että talossa, jossa asutaan, pystyi tekemään niin isoa remonttia ilman suurempaa häiriötä!
Matkan varrella ei tullut yllätyksiä, ja aikataulutkin pitivät. Olemme olleet erittäin tyytyväisiä työn suunnitteluun ja toteutukseen; nyt tilat ovat modernit ja käytettävät. Hyvin hoidettu, Laattapiste, hienosti meni!”
Asiakas Oulusta






