Ajaton sekä raikas kylpyhuone ja sauna
1990-luvun rivitalokodin kylpyhuone ja sauna
Kun lapset muuttivat kotoa, rivitalokodin remontti päätettiin aloittaa kylpytiloista. Värimaailma asukkailla oli jo mielessä, mutta remontin toteuttajaksi haluttiin etsiä luotettava ja asiallinen kumppani.
| Projektin tyyppi: |
|
|---|---|
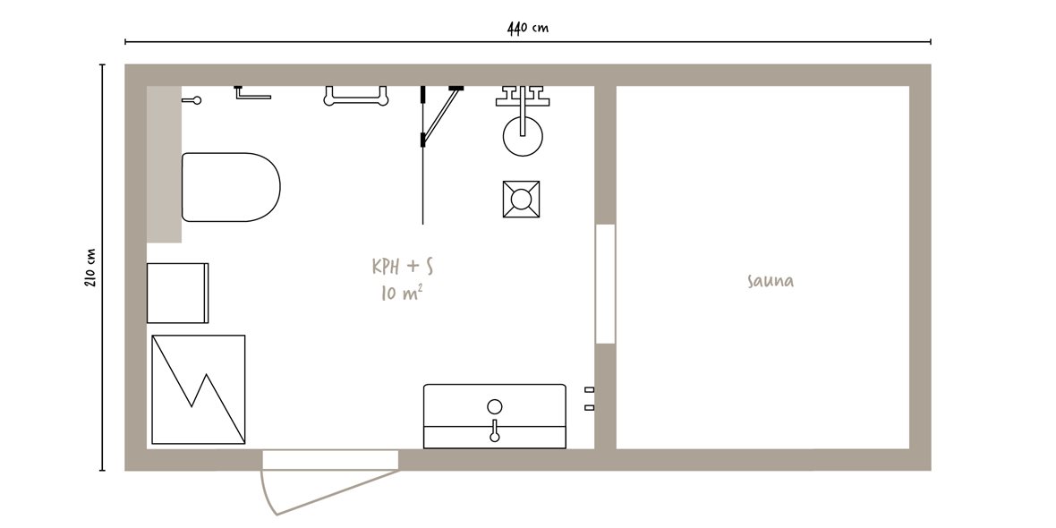
| Sijainti: | Espoo |
| Rakennustyyppi: | Rivitalo |
| Rakennusvuosi: | 1990 |
| Pinta-ala: | 10 m² |
| Suunnittelija: | Laattapiste Oy |
|---|---|
| Pääurakoitsija: | Laattapiste Oy |
”Kaunis kylppäri tekee hyvää ihmismielelle.”
Hinta yhteensä: 36 772,20 €
Laatat: 1 333,20 €
Kalusteet ja tarvikkeet (kaapit, allas, wc-istuin, suihkuseinä, lattiakaivonkansi jne.): 10 412,20 €
Rakennusmateriaalit ja -tarvikkeet (mukaan lukien jätemaksut): 1 733,90 €
Remonttityöt: 13 339 €
Sähkötyöt: 1 165,10 €
Putkityöt: 1 900,90 €
LVIS-tarvikkeet: 2 775 €
Sauna: 4 112,90 €
Remonttityön osuudesta puolet voi vähentää verotuksessa.
Vuosittain kotitalousvähennystä voi saada
- yhden hengen taloudessa 2 400 €
- kahden hengen taloudessa 4 800 €.
Rempparaha-rahoitus samanlaiseen kylpyhuoneeseen alkaen 625,13 €/kk
- Rahoitettava määrä 36 772,20 €
- Kuukausierä 625,13 €
- Luottoaika 74 kk
- Luottohinta 44 873,30 €
- Rahoituskorko 6,60 %
- Vuosikorko 6,62 %
- Laskutuspalkkio 7 €
Rahoitus on kertaluotto 1 000–50 000 €. Todellinen vuosikorko 10 000 €:n luotolle on 7,61 %, kun luoton korko on OP-prime +6,25 % (6,5 % 4/18). Laskutuspalkkio 7 €/kk. Arvioitu luoton kokonaiskustannus on 12 636,34 €. Laskelma on tehty olettaen, että luotto on nostettu kokonaan, luoton korko sekä maksut ja palkkiot pysyvät samana koko luottoajan ja luotto maksetaan takaisin 170 €:n minimilyhennyksin (1,7 % luoton määrästä) kuukauden välein, jolloin luottoaika on 77 kk. Luoton myöntää OP Yrityspankki Oyj, Gebhardinaukio 1, 00510 Helsinki.
Kontrasteja ja kiinnostavia yksityiskohtia
Haussa luotettava ja osaava remonttikumppani
"Tiesimme, että kotimme remontointi olisi aloitettava kylpyhuoneesta ja saunasta. Kylpyhuoneen seinissä ja lattiassa oli kyllä kaakelit, mutta tila oli tylsä ja tunkkainen, ja siellä oli epämieluisaa käydä pesulla. Saunaa emme olleet edes käyttäneet vähään aikaan.
Kuulostelimme tutuilta sekä tutkimme netissä eri remonttifirmavaihtoehtoja varmaankin puolen vuoden ajan. Uskon, että meidän molempien ajatuksiin vaikutti eniten se, että Laattapiste tuntui kaikkein luotettavimmalta. Laattapiste oli myös asiallinen: en innostu ylilyövistä lupauksista, joissa kerrotaan kaiken onnistuvan.
Kylpyhuoneen värimaailma oli minun kontollani ja meille jo etukäteen selvillä. Mielestämme värit onnistuivat juuri niin kuin pitikin. Oli myös erittäin hyvä, että myyjämme Riitta sanoi suoraan, jos jotain ratkaisua ei hänestä kannattanut ajatella. Mietimme sitten tilalle jotakin muuta. Lisäksi Riitta oli ammattitaitoinen ja osasi esitellä materiaalit ja varusteet, ja itse suunnittelukin sujui nopeasti.
Pystyraidan tiililadonta elävöittää kiiltävänvalkoista seinälaatoitusta.
Yksinkertainen mutta kaunis sauna kestää aikaa ja katseita.
Laattalistoja ei käytetty lainkaan, vaan kaikkien laattojen ulkokulmat on jiirattu.
Löytynyt kosteusvaurio pitkitti remonttia
Varsinainen remontti alkoi entisten materiaalien purkamisella, jolloin kylppäristä löytyi kosteusvaurio. Tilassa jouduttiin tekemään tutkimuksia, mutta onneksi todettiin, ettei kosteus ollut mennyt ulkopintaan saakka. Aika monta viikkoa kului silti pelkässä kuivatuksessa, mutta sitten remontti pääsi taas etenemään ja meni tosi nopeasti.
Lopputuloksesta tykkäämme oikein paljon. Remontti sujui niin hyvin, ettei meillä ole mitään poikkipuolista sanaa sanottavana. Rakentaja oli erittäin hyvä ja tarkka työssään, ja työn jälki on todella erinomaista joka kohdassa. Jokaiseen työntekijään myös pystyi luottamaan remontin kaikissa vaiheissa.
”Remontti sujui niin hyvin, ettei meillä ole mitään poikkipuolista sanaa sanottavana.”
Kaikin puolin onnistunut remontti
Olen kuunnellut tuttujen kylpyhuone- ja putkiremonttikokemuksia ja kuullut, miten kamala tilanne voi kauheimmillaan olla. Remontti on rankka ja energiaa vievä sekä myös raskas kuvio perheen kanssa, eikä silloin toivo ylimääräisiä hankaluuksia.
Olenkin siunaillut mielessäni, miten vältyimme kaikelta sellaiselta. En kuitenkaan ajattele, että se olisi ollut tuuria, vaan että teimme hyvän valinnan. Valitsimme kumppanin sillä ajatuksella, että remontti pitää hintansa vielä kymmenen vuoden päästä ja kun asuntoa joskus myy eteenpäin.
Saimme kauniin, raikkaan näköisen kylpyhuoneen, joka on ajaton ja yksinkertainen. Olen aina hyvällä tuulella, kun menen sinne aamulla; kaunis tila tekee hyvää ihmismielelle. Mustat, eläväpintaiset lattialaatat ja lattialämmitys saavat aikaan tunteen, kuin kävelisi auringon lämmittämällä kalliolla. Se on ihana mielikuva, joka tulee käytännössä todeksi ─ en osannut ajatellakaan etukäteen, että tällaista voisi olla!”
Seija Pallaskorpi, Espoo


