Mustavalkoinen kylpyhuone
2000-luvun omakotitalon kylpyhuone
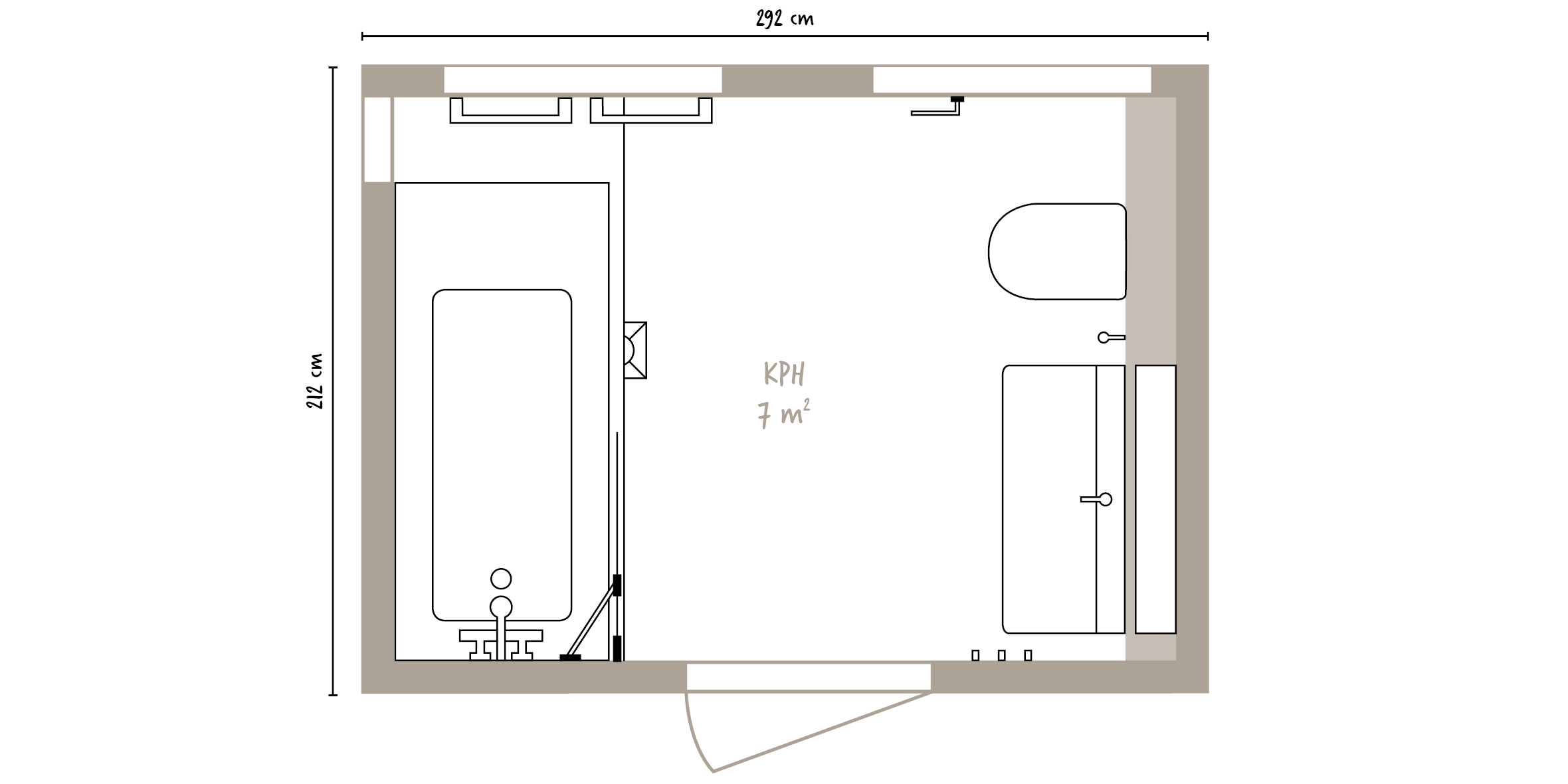
Omakotitalon kylpyhuone oli jäänyt rakennusvaiheessa hieman keskeneräiseksi. Lopullisen sysäyksen remontille antoi pieni vesivahinko. Kylpyhuoneen suunnittelu lähti liikkeelle asukkaiden toiveesta saada uuteenkin tilaan kylpyamme. Haaveena oli myös mustavalkoinen värimaailma, jota tehostamaan haluttiin ripaus bling-blingiä.
| Projektin tyyppi: |
|
|---|---|
| Sijainti: | Espoo |
| Rakennustyyppi: | Omakotitalo |
| Rakennusvuosi: | 2000 |
| Pinta-ala: | 7 m² |
| Suunnittelija: | Laattapiste Oy |
|---|---|
| Pääurakoitsija: | Laattapiste Oy |
"Hinta ja se, mitä sovittiin, kohtasi tarpeemme."
Hinta yhteensä: 22 682,30 €
Laatat: 1 362,90 €
Kalusteet ja tarvikkeet (kaapit, allas, wc-istuin, suihkuseinä, lattiakaivonkansi jne.): 4 006,40 €
Rakennusmateriaalit ja -tarvikkeet (mukaan lukien jätemaksut): 3 476,60 €
Remonttityöt: 10 375 €
Sähkötyöt: 613,20 €
Putkityöt: 1 192,10 €
LVIS-tarvikkeet: 1 206,10 €
Rahtikulut: 450 €
Remonttityön osuudesta puolet voi vähentää verotuksessa.
Vuosittain kotitalousvähennystä voi saada
- yhden hengen taloudessa 2 400 €
- kahden hengen taloudessa 4 800 €.
Rempparaha-rahoitus samanlaiseen kylpyhuoneeseen alkaen 385,60 €/kk
- Rahoitettava määrä 22 682,30 €
- Kuukausierä 385,60 €
- Luottoaika 75 kk
- Luottohinta 27 923,36 €
- Rahoituskorko 6,60 %
- Vuosikorko 6,88 %
- Laskutuspalkkio 7 €
Rahoitus on kertaluotto 1 000–50 000 €. Todellinen vuosikorko 10 000 €:n luotolle on 7,61 %, kun luoton korko on OP-prime +6,25 % (6,5 % 4/18). Laskutuspalkkio 7 €/kk. Arvioitu luoton kokonaiskustannus on 12 636,34 €. Laskelma on tehty olettaen, että luotto on nostettu kokonaan, luoton korko sekä maksut ja palkkiot pysyvät samana koko luottoajan ja luotto maksetaan takaisin 170 €:n minimilyhennyksin (1,7 % luoton määrästä) kuukauden välein, jolloin luottoaika on 77 kk. Luoton myöntää OP Yrityspankki Oyj, Gebhardinaukio 1, 00510 Helsinki.
Ripaus bling-blingiä
Kokonaisuus ratkaisi kylpyhuoneremontin kumppanin
”Talomme on sinänsä uusi, alle 10 vuotta vanha, mutta kylpyhuone jäi jo alun pitäen hieman keskeneräiseksi. Loppusysäyksen remontille antoi käytävän puolella sattunut pieni vesivahinko: ajattelin, että nyt jotain pitää tehdä. Siinä sitten yksi päivä pyörähdin Laattapisteelle kysymään suunnittelusta ja siitä, miten remontti toimii. Varsinaisen remonttipäätöksen syntymisessä meillä oli silti veivaamista ja valinta kesti melko pitkään. Lopulta kokonaisuus ratkaisi: hinta ja se, mitä sovittiin, kohtasi tarpeemme.
Koko kylpyhuoneen suunnittelu lähti siitä, että halusimme uuteenkin kylppäriin ammeen. Sen sijaan annoimme vapaat kädet kalusteiden järjestelemisessä. Aiemmin kylpyhuoneessa oli kermanväristä, vaaleaa laattaa ja tummemmanpunaisia tehostelaattoja. Meillä oli mielessä uusi, mustavalkoinen sävymaailma, ja päätös terävöityi matkan varrella. Tilaan piti saada myös jotain bling-blingiä.
Kylpyhuoneen väritys vaihtui mustavalkoiseksi.
Himmeästi kimaltelevat laatat tuovat aistikkuutta.
Amme täydentää ylellisen tuntuisen kokonaisuuden.
Kylpyhuoneremontti eteni nopeasti
Remontti lähti aika reippaasti liikkeelle. Ensin tehtiin suojaukset, ja yläkerrasta varattiin yksi huone remonttitarvikkeille. Tuntui kyllä, että apua, kylppäri ja puolet asunnosta on peitetty, tätäkö pitää kestää monta viikkoa! Ilmassa oli siis uupumuksen ja epätoivon merkkejä. Aika nopeasti kaveri kuitenkin eteni työssään ja kysyi esimerkiksi, voiko hän laatoittaa pitkän päivän viikonloppuna, lauantaina. Meille se sopi hyvin, sillä tiesimme, että se nopeuttaa työn valmistumista.
”Pääväreihin pystyy hyvin yhdistämään
eri sävyjä vuodenaikojen mukaan.”
Alussa piti myös selvittää, pystyykö kalusteita siirtämään vai ei, ja myös lattia oli piikattava auki. Yhteen lattialämmitysputkeen tuli pieni reikä, mikä aiheutti vähän viivästystä. Mutta eihän mikään remontti suju ilman yllätyksiä!
Kalusteiden asennusvaiheessa taas pöntön huuhtelupainikkeessa oli useamman kerran häikkää ja sitä käytiin korjaamassa. Tämä hoitui kuitenkin aina hyvin helposti, sillä tiesimme, mihin ottaa yhteyttä, ja sitten kaveri tuli paikalle ja vika saatiin korjattua saman tien.
Parasta uudessa kylppärissä on toimivan oloinen kokonaisuus. Pääväreihin pystyy hyvin yhdistämään vuodenaikojen mukaan eri sävyjä ja siten värimaailmaa ja ilmettä voi muokata esimerkiksi pyyhkeillä.”
Asiakas Espoosta


