Särmikäs kylpyhuone ja sauna
1990-luvun omakotitalon kylpyhuone ja sauna
1990-luvun alussa rakennetun omakotitalon kylpyhuone ja sauna olivat tulleet tiensä päähän ja kaipasivat uudistusta. Remonttiin haluttiin valita kumppani, joka pystyisi hoitamaan kaiken suunnittelusta viimeistelyyn asti.
| Projektin tyyppi: |
|
|---|---|
| Sijainti: | Kirkkonummi |
| Rakennustyyppi: | Omakotitalo |
| Rakennusvuosi: | 1991 |
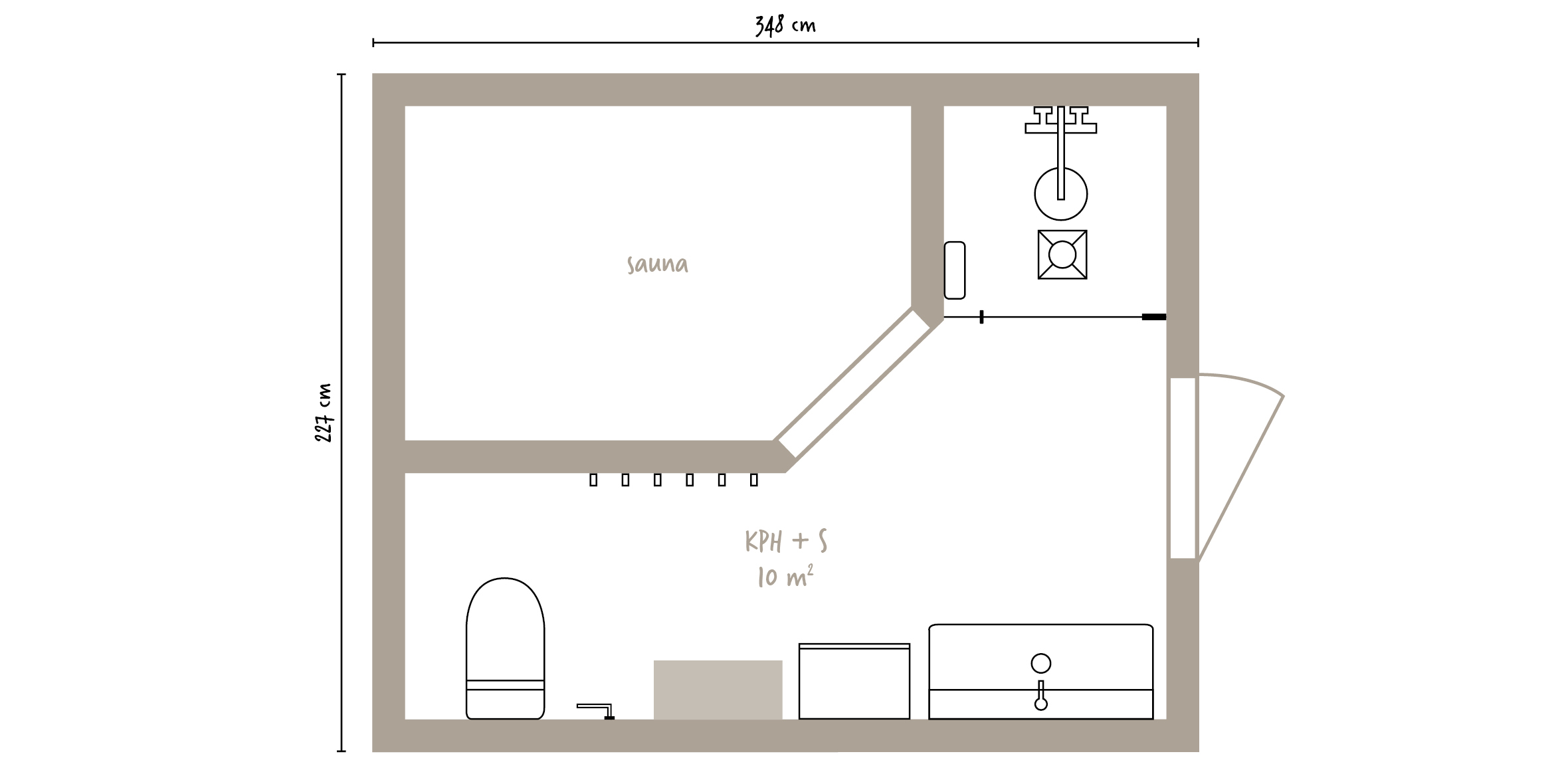
| Pinta-ala: | 10 m² |
| Suunnittelija: | Laattapiste Oy |
|---|---|
| Pääurakoitsija: | Laattapiste Oy |
"Remontti sujui vaivattomasti, ja olemme lopputulokseen erittäin tyytyväisiä."
Vaaleaa mutta särmikästä
Kylpyhuone kaipasi uudistusta
”Vuonna 1991 rakennetun omakotitalomme kylpyhuone ja sauna olivat sinänsä toimivat, mutta tuntuivat jo vanhanaikaisilta ja kuluneilta. Kaapistojen ovet olivat alkaneet falskata, ja myös laattojen saumat olivat huonossa kunnossa. Värimaailma oli valkoinen ja beessi, ja kaapistot ja altaat olivat vakiomalliset. Niinpä päätimme uudistaa tilat kauttaaltaan.
Kiertelimme kauppoja ja päätimme valita kumppaniksi Laattapisteen, koska sieltä sai avaimet käteen -paketin ja laatukin vaikutti hyvältä. Meille ratkaisevaa oli, että kaiken remonttiin liittyvän sai samasta paikasta ja meidän ei tarvinnut itse olla yhteydessä moniin eri toimijoihin.
Kohokuviolliset laatat tuovat kylpyhuoneeseen persoonallista ilmettä.
Suuret peilipinnat kaapistoissa tekevät kapeasta tilasta avaramman.
Punertavan ruskea lattia tuo sopivasti särmää vaaleaan kylpyhuoneeseen.
Toiveena toimiva kylpyhuone ja valkoiset laatat
Remontin suhteen meillä ei ollut mitään erityisempiä toiveita: Halusimme tiloista toimivat ja toivoimme niihin valkoisia laattoja. Paljon pinnalla ollut harmaa tai tumma värimaailma ei puhutellut meitä. Pidimme myyjämme Henriikan ideasta tuoda tilaan erikokoisia kohokuviollisia laattoja tehosteeksi. Näin saimme valkoiset seinät, mutta myös persoonallisuutta. Kohokuviollisia laattoja päätettiin laittaa sekä suihkun taakse että pienelle seinälle käsienpesualtaan viereen.
Helppo ja vaivaton kylpyhuoneremontti
Itse suunnitteluprosessi oli meille vaivaton ja helppo. Kylpyhuonemyyjä Henriikka piirsi hienot 3D-kuvat, joista oli helppo hahmottaa kokonaisuus. Ainoa asia, minkä halusimme vaihtaa suunnitelmissa, oli katon laudoitus, jonka tahdoimme mieluummin pituussuuntaan kuin poikittain. Muuten emme tehneet muutoksia.
”Olin ihan ihmeissäni, miten hyvin remontoitava tila pystyttiin eristämään muusta asunnosta.”
Myös remontti sujui vaivattomasti. Asuimme lähes koko remontin ajan kotona ja olin ihan ihmeissäni, miten hyvin remontoitava tila pystyttiin eristämään ja suojaamaan muusta asunnosta. Suojaukset olivat loistavat, ja koko remonttiporukka teki erinomaista työtä. Yhdestä kohdasta löytyi kosteutta, joka ei ollut näkynyt mitenkään ulospäin. Se huomattiin, kun tilaan tehtiin kosteusmittaus. Korjaus oli kuitenkin nopea homma — kyseinen kohta piikattiin auki ja kuivatettiin.
Lopputulokseen olemme erittäin tyytyväisiä, ja kylpyhuoneesta tuli jopa paremman näköinen kuin osasimme toivoa. Työnjohto oli erittäin asiallista, ja myyjämme Henriikka sympaattinen ja auttavainen. Voin lämpimästi suositella Laattapistettä muillekin. Hinta oli vähän muita kalliimpi, mutta ehdottomasti sen arvoinen, koska kaikki sujui niin mutkattomasti.”
Kurt Ekman, Kirkkonummi




