Selkeä kylpyhuone, sauna ja wc
1970-luvun omakotitalon kylpyhuone, sauna ja wc
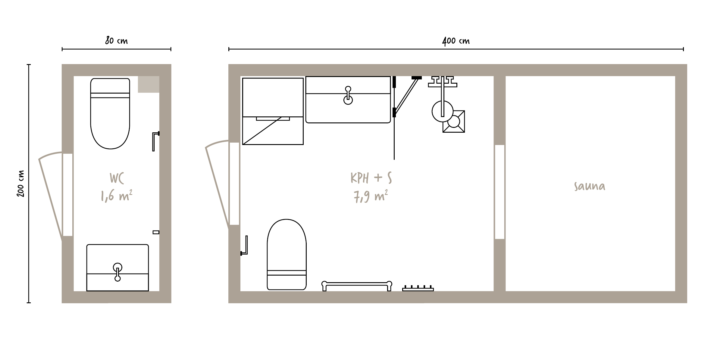
1970-luvulla rakennetun omakotitalon sauna, kylpyhuone ja wc olivat tulleet käyttöikänsä päähän. Valaistus oli huono, tilat ahtaat ja materiaalit jo aikansa eläneet. Lisäksi tilat olivat kylmät, sillä niistä puuttui lattialämmitys. Remontin suunnittelu ja toteutus sujuivat erinomaisesti, vaikka asukkaat asuivat koko remontin ajan kotona.
| Projektin tyyppi: |
|
|---|---|
| Sijainti: | Joensuu |
| Rakennustyyppi: | Omakotitalo |
| Rakennusvuosi: | 1970 |
| Pinta-ala: | 10 m² |
| Suunnittelija: | Sari Tykkyläinen, Laattapiste Oy |
|---|---|
| Pääurakoitsija: | Laattapiste Oy |
"Myyjä kuunteli tarkkaan toiveitamme."
Hinta yhteensä: 30 630,50 €
Laatat: 1 027,20 €
Kalusteet ja tarvikkeet (kaapit, allas, wc-istuin, suihkuseinä, lattiakaivonkansi jne.): 1 811,40 €
Rakennusmateriaalit ja -tarvikkeet (mukaan lukien jätemaksut): 3 082,70 €
Remonttityöt: 15 118 €
Sähkötyöt: 1 315,50 €
Putkityöt: 788,90 €
LVIS-tarvikkeet: 2 139 €
Sauna: 4 867,80 €
Vesieristyskartoitus: 480 €
Remonttityön osuudesta puolet voi vähentää verotuksessa.
Vuosittain kotitalousvähennystä voi saada
- yhden hengen taloudessa 2 400 €
- kahden hengen taloudessa 4 800 €.
Rempparaha-rahoitus samanlaiseen kylpyhuoneeseen alkaen 520,72 €/kk
- Rahoitettava määrä 30 630,50 €
- Kuukausierä 520,72 €
- Luottoaika 74 kk
- Luottohinta 37 481,47 €
- Rahoituskorko 6,60 %
- Vuosikorko 6,70 %
- Laskutuspalkkio 7 €
Rahoitus on kertaluotto 1 000–50 000 €. Todellinen vuosikorko 10 000 €:n luotolle on 7,61 %, kun luoton korko on OP-prime +6,25 % (6,5 % 4/18). Laskutuspalkkio 7 €/kk. Arvioitu luoton kokonaiskustannus on 12 636,34 €. Laskelma on tehty olettaen, että luotto on nostettu kokonaan, luoton korko sekä maksut ja palkkiot pysyvät samana koko luottoajan ja luotto maksetaan takaisin 170 €:n minimilyhennyksin (1,7 % luoton määrästä) kuukauden välein, jolloin luottoaika on 77 kk. Luoton myöntää OP Yrityspankki Oyj, Gebhardinaukio 1, 00510 Helsinki.
VALOISA, LÄMMIN JA TURVALLINEN KYLPYHUONE
Toiveena avaimet käteen -remontti
”Kylpyhuoneremontin suunnittelu oli tullut ajankohtaiseksi, sillä olemme yli 70-vuotiaita. Tulemme tarvitsemaan valoisat, lämpimät ja turvalliset pesutilat, että voimme asua kotona mahdollisimman vanhaksi. Itsellämme ei ole voimia eikä osaamista näin mittavan projektin hoitamiseen, joten lähdimme etsimään remontoijaa, joka toimii avaimet käteen -periaatteella.
Valitsimme yhteistyön Laattapisteen kanssa useasta eri syystä. Ensinnäkin myyjä Sari Tykkyläisen asenne meitä kohtaan oli alusta asti kunnioittava, ja hän kuunteli tarkkaan toiveitamme. Saimme kysellä paljon ja tyhmiä kysymyksiä ei ollut.
Myös työnjohtaja Harri Leskisen asiantuntemus vakuutti meidät. Hän auttoi meitä tekemään järkeviä valintoja ja kävi tarkasti läpi koko remonttiprosessin sekä Laattapisteen laatutakuun. Oli myönteinen yllätys, että pystyimme hyödyntämään osan vanhoista kylpyhuonekalusteistamme, jotka oli uusittu putkiremontin yhteydessä seitsemän vuotta sitten. Kalusteet olivat vielä hyvässä kunnossa, joten olisi ollut sääli lähteä vaihtamaan niitä.
Laattapisteen kokonaisvaltainen suunnittelu- ja remonttipalvelu sopii kaikille niille, joilla ei ole aikaa, voimia tai osaamista koordinoida tällaista projektia itse.
Yhteen pikkuvessan seinään valittiin harmaat laatat.
Hana on malliltaan ajaton.
Saunan lasiseinä tuo kylpyhuoneeseen avaruutta.
Ahdistavan ahdas suihkutila
Suurin haaste vanhassa kylpyhuoneessa oli suihkutilan ahtaus. Saunan ja pesutilan välissä oli 20 cm paksu seinä, joka vei kohtuuttomasti tilaa kylpyhuoneesta. Remontin yhteydessä se poistettiin ja tilalle asennettiin lasiseinä. Näin saatiin lisää tilaa suihkun puolelle ja koko kylpyhuoneesta tuli avaramman oloinen.
Lattioiden kallistukset oli tehty aiemmin huonosti, ja laattojen lasitukset olivat osittain rikki. Pelkäsimme, että remontissa paljastuisi kosteutta, mutta sitä ei onneksi löytynyt. Asbestiakaan ei rakenteissamme ollut.
Minimalistista mutta laadukasta
Suunnitteluprosessi sujui erinomaisesti, ja meitä ihastutti, voiko remontti lähteä näin fiksusti käyntiin. Keskustelimme ja meillä oli paljon kysymyksiä. Joissain asioissa tingimme ja toisiin panostimme. Saimme aina hyvät perustelut, miksi jotakin kannattaa tehdä ja miksi ei.
Olen minimalisti, joten päädyimme selkeisiin ja ajattomiin mutta laadukkaisiin materiaaleihin. Seinään valitsimme isot, valkoiset laatat ja lattiaan harmaan, sopivan karhean laatan, joka ei ole liukas. Tervaleppäpaneeli saunassa ja kylpyhuoneen katossa tuo sopivasti lämpöä ja väriä kokonaisuuteen. Myös tervalepästä tehdyt lauteet ovat asia, johon panostimme. Ne ovat upeat. Pikkuvessan seinälle, allaskalusteen taakse valitsimme harmaan seinälaatan. Se oli myyjämme Sarin hyvä idea. Sisustuksella ja tekstiileillä tiloihin voi aina halutessaan lisätä väriä.
”Remontti sujui hyvin, vaikka asuimme koko ajan kotona.”
Remontti sujui hyvin, vaikka asuimme koko ajan kotona. Remonttialue rajattiin tarkasti muoveilla ja purkuvaiheessa tehty alipaineistus piti huolen siitä, että remonttipöly ei levinnyt muualle asuntoon. Remonttimiehemme Jarkko Alsio oli hienotunteinen, ammattitaitoinen ja aikaansaava. Hän siivosi aina työpäivän päätteeksi paikat ja koordinoi putki- ja sähkötöiden ajoituksen niin, että työ ei missään vaiheessa pysähtynyt. Kaikki muutkin työntekijät olivat ammattitaitoisia ja huolellisia.
Eniten uudessa kylppärissä ilahduttaa sen avaruus ja kauneus sekä parantunut ilmanvaihto ja lattialämmitys. Minäkin viihdyn nyt saunassa, kun sieltä näkee laajemmalle alueelle ja ei tule ahtaanpaikankammoa.”
Maija Kokko, Joensuu



