Viileän tyylikäs kylpyhuone, wc ja keittiön välitila
1980-luvun rivitalokodin kylpyhuone, wc ja keittiön välitila
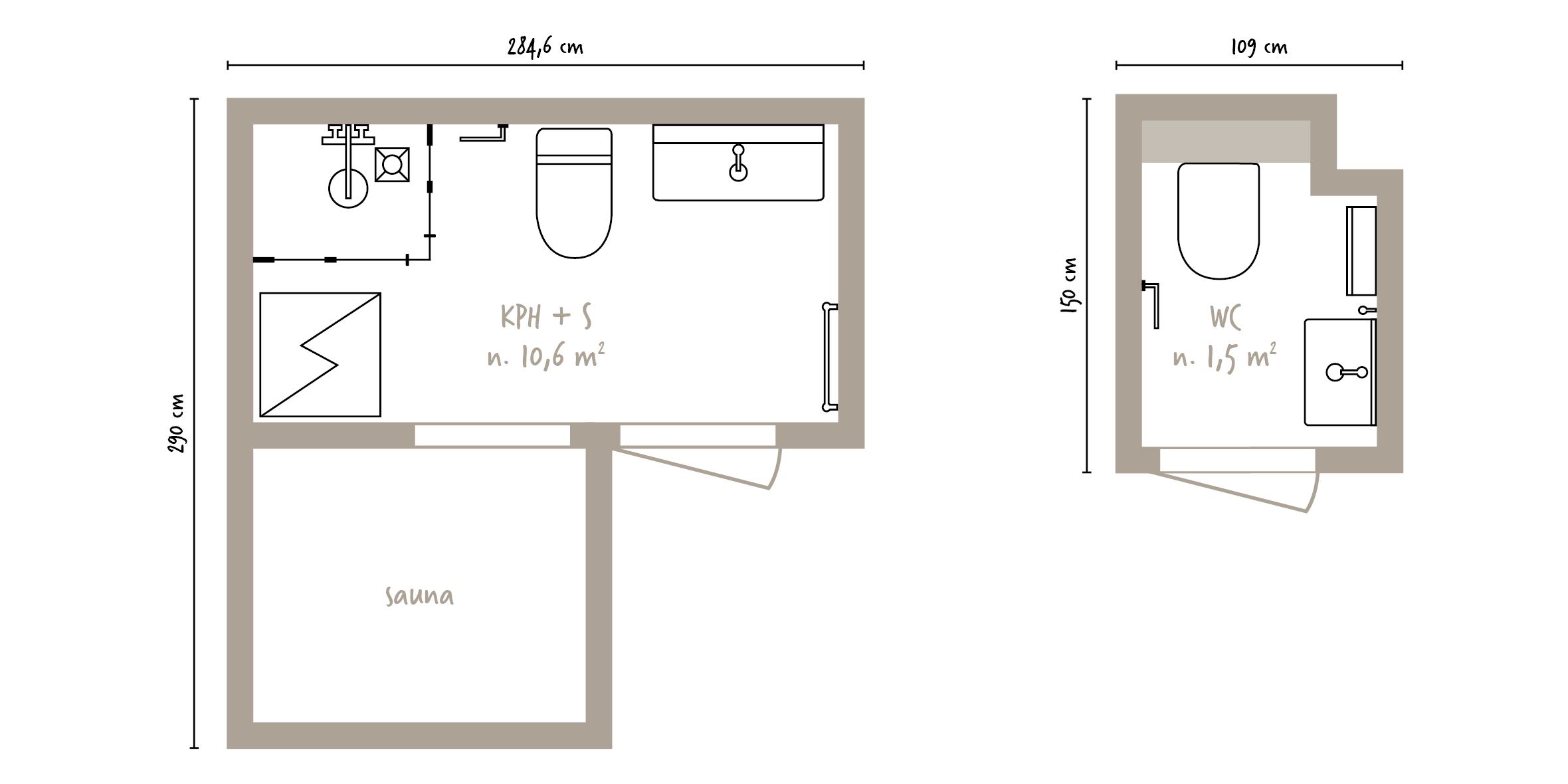
1980-luvun puolessavälissä valmistuneen rivitalokodin kylpyhuone ja erillinen wc kaipasivat uudistusta. Samassa yhteydessä haluttiin uusia myös keittiön välitilan laatoitus. Remontissa kaikki tilat saivat yhtenäisen, tyylikkään ilmeen.
| Projektin tyyppi: |
|
|---|---|
| Sijainti: | Espoo |
| Rakennustyyppi: | Rivitalo |
| Rakennusvuosi: | 1985 |
| Pinta-ala: | 12 m² |
| Suunnittelija: | Laattapiste Oy |
|---|---|
| Pääurakoitsija: | Laattapiste Oy |
Hinta yhteensä: 40 476,50 €
Laatat: 3 187,20 €
Kalusteet ja tarvikkeet (kaapit, allas, wc-istuin, suihkuseinä, lattiakaivonkansi jne.): 11 613,50 €
Rakennusmateriaalit ja -tarvikkeet (mukaan lukien jätemaksut): 3 347 €
Remonttityöt: 16 908 €
Sähkötyöt: 935,50 €
Putkityöt: 2 210,70 €
LVIS-tarvikkeet: 2 774,90 €
Remonttityön osuudesta puolet voi vähentää verotuksessa.
Vuosittain kotitalousvähennystä voi saada
- yhden hengen taloudessa 2 400 €
- kahden hengen taloudessa 4 800 €.
Rempparaha-rahoitus samanlaiseen kylpyhuoneeseen alkaen 688,11 €/kk
- Rahoitettava määrä 40 476,50 €
- Kuukausierä 688,11 €
- Luottoaika 74 kk
- Luottohinta 49 324,17 €
- Rahoituskorko 6,60 %
- Vuosikorko 6,58 %
- Laskutuspalkkio 7 €
Rahoitus on kertaluotto 1 000–50 000 €. Todellinen vuosikorko 10 000 €:n luotolle on 7,61 %, kun luoton korko on OP-prime +6,25 % (6,5 % 4/18). Laskutuspalkkio 7 €/kk. Arvioitu luoton kokonaiskustannus on 12 636,34 €. Laskelma on tehty olettaen, että luotto on nostettu kokonaan, luoton korko sekä maksut ja palkkiot pysyvät samana koko luottoajan ja luotto maksetaan takaisin 170 €:n minimilyhennyksin (1,7 % luoton määrästä) kuukauden välein, jolloin luottoaika on 77 kk. Luoton myöntää OP Yrityspankki Oyj, Gebhardinaukio 1, 00510 Helsinki
Rosoisissa, kivikuosisissa sauvalaatoissa on elävä ja himmeästi hohtava pinta.
Näyttävissä, kalkkikiveä muistuttavissa laatoissa on pehmeä aaltokuviointi.
Myös pikkuvessassa toistuvat samat, ajattoman harmaat ja valkoiset sävyt.


